работа:
Mebor
модель:
htz 1100 pro + vr900
Описание:
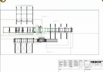
Linia do rozkroju drewna Mebor HTZ 1100 Pro + VR900
W skład linii wchodzi:
- 1.TRANSPORTER KŁÓD ŁAOCUCHOWY – WERSJA CZTERORAMIENNA – MLD
- 2. POZIOMY TRAK TAŚMOWY MEBOR HTZ 1100 PRO
- 3. NAPĘDZANY TRANSPORTER ROLKOWY Z SORTOWANIEM LEWO – PRAWO RC M 800 9 m
- 4. POPRZECZNE RAMIONA ŁOŻYSKOWANE 4 X 2 M
- 5. OBRZYNARKO WIELOPIŁA VR 900 55 KW
- 6.NAPĘDZANY TRANSPORTER ROLKOWY Z SORTOWANIEM LEWO – PRAWO RC M 800 8 m
- 7.POPRZECZNY TRANSPORTER ŁAOCUCHOWY CCP – M 4 x 3m
- Cena netto 1 300 000,00 zł
- Poland
- Новые










